Geberit Sigma 8 Wall Hung Rimless Tornado Toilet Suite Matt White
- All Toilets, In Wall Toilet Suites, Toilets
- Description:
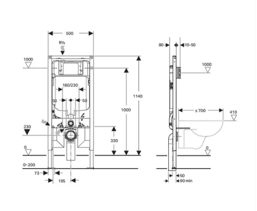
Geberit Sigma 8 Wall Hung Rimless Tornado Toilet Suite Matt White Also available in different stainless steel colour buttons for extra cost see below Elevate your bathroom ambiance with the exquisite Wall Hung In Wall Toilet Suite, now featuring Stainless Steel Colour Buttons. At the heart of this sophisticated ensemble lies the Sigma 8 in-wall Cistern (Model: 109.795.00.1), a testament to precision engineering with a WELS 4 Star Flow Rate (4.5/3L). Offering versatility for both S or P trap back-to-wall pans, this suite provides unparalleled flexibility during installation. Choose from mechanical, pneumatic, or electronic buttons, each granting design freedom and compatibility with the full range of mechanical and pneumatic Sigma buttons available in Australia. The Geberit Tank is designed in Switzerland and meticulously crafted in Germany, this suite effortlessly integrates into standard 90mm walls, epitomizing a seamless blend of elegance and functionality. Backed by a 15-year warranty, it exudes durability and longevity, ensuring a timeless addition to your bathroom. Holding the esteemed Australian WELS Approved and a 4-star rating, this suite emphasizes water efficiency, embodying a commitment to sustainability. Complementing the cistern is the Wall Hung Rimless Tornado Wall-Faced Pan, an epitome of hygiene with its rimless flush and a Matt white finish. The concealed pan facilitates easy cleaning, while the UF quick release, soft-close slim seat adds a touch of comfort. This pan is adaptable to diverse bathroom layouts. With a 15-year product warranty and a WELS 4 Star rating (4.4L/3L), it seamlessly combines durability and water efficiency, making it a choice of both style and practicality. Key Features: 1. Geberit Tank- WELS 4 Star Flow Rate (4.5/3L)
- Suitable For Wall Hung Pans
- Options of mechanical buttons give greater design freedom
- Compatible with all mechanical Sigma buttons available in Australia
- Fits standard 90mm walls
- Rimless hygienic flush
- Matt white finish
- Concealed pan for easy cleaning
- UF quick release, soft close slim seat
- High-quality flush mechanisms
- Stainless steel hinges
- Chrome Sigma Button Round +$110
- Brushed Nickel Sigma Button Round +$239
- Gun Metal Sigma Round Button +$239
- Brushed Gold Sigma Round Button +$239
- Matte White Sigma Round Button +$144
- Matt Black Sigma Round Button +$144
- Antique Brass.Sigma Round Button +$260
Original price was: $1,190.00.$849.00Current price is: $849.00.
Geberit Sigma 8 Wall Hung Rimless Tornado Toilet Suite Matt White Also available in different stainless steel colour buttons for extra cost see below
Elevate your bathroom ambiance with the exquisite Wall Hung In Wall Toilet Suite, now featuring Stainless Steel Colour Buttons. At the heart of this sophisticated ensemble lies the Sigma 8 in-wall Cistern (Model: 109.795.00.1), a testament to precision engineering with a WELS 4 Star Flow Rate (4.5/3L). Offering versatility for both S or P trap back-to-wall pans, this suite provides unparalleled flexibility during installation. Choose from mechanical, pneumatic, or electronic buttons, each granting design freedom and compatibility with the full range of mechanical and pneumatic Sigma buttons available in Australia.
The Geberit Tank is designed in Switzerland and meticulously crafted in Germany, this suite effortlessly integrates into standard 90mm walls, epitomizing a seamless blend of elegance and functionality. Backed by a 15-year warranty, it exudes durability and longevity, ensuring a timeless addition to your bathroom. Holding the esteemed Australian WELS Approved and a 4-star rating, this suite emphasizes water efficiency, embodying a commitment to sustainability.
Complementing the cistern is the Wall Hung Rimless Tornado Wall-Faced Pan, an epitome of hygiene with its rimless flush and a Matt white finish. The concealed pan facilitates easy cleaning, while the UF quick release, soft-close slim seat adds a touch of comfort. This pan is adaptable to diverse bathroom layouts. With a 15-year product warranty and a WELS 4 Star rating (4.4L/3L), it seamlessly combines durability and water efficiency, making it a choice of both style and practicality.
Key Features:
1. Geberit Tank
- WELS 4 Star Flow Rate (4.5/3L)
- Suitable For Wall Hung Pans
- Options of mechanical buttons give greater design freedom
- Compatible with all mechanical Sigma buttons available in Australia
- Fits standard 90mm walls
2. Rimless Wall Hung Pan
- Rimless hygienic flush
- Matt white finish
- Concealed pan for easy cleaning
- UF quick release, soft close slim seat
- High-quality flush mechanisms
- Stainless steel hinges
3. STAINLESS STEEL Access Plate (Button) of your choice
- Chrome Sigma Button Round +$110
- Brushed Nickel Sigma Button Round +$239
- Gun Metal Sigma Round Button +$239
- Brushed Gold Sigma Round Button +$239
- Matte White Sigma Round Button +$144
- Matt Black Sigma Round Button +$144
- Antique Brass.Sigma Round Button +$260
In summary, the Wall Hung in Wall Cistern Toilet Suite with Stainless Steel Colour Buttons is a testament to refined design, superior functionality, and lasting quality. Elevate your bathroom aesthetics, enjoy water efficiency, and revel in the freedom to personalize your space with this exceptional suite that blends form and function seamlessly.




























































